Рейтинг: 165
Паспорт верифицирован
Всего отзывов: 0
  • Работ в портфолио: 50
  • Типовых услуг: 1
  • Работ на продажу: 5
  • Возраст: 52 года
  • Стаж работы: 4 года
  • Зарегистрирован: 08.10.2022
  • Образование: Бакалавриат
  • Стоимость услуг (руб): 500 за час
Был на сайте:

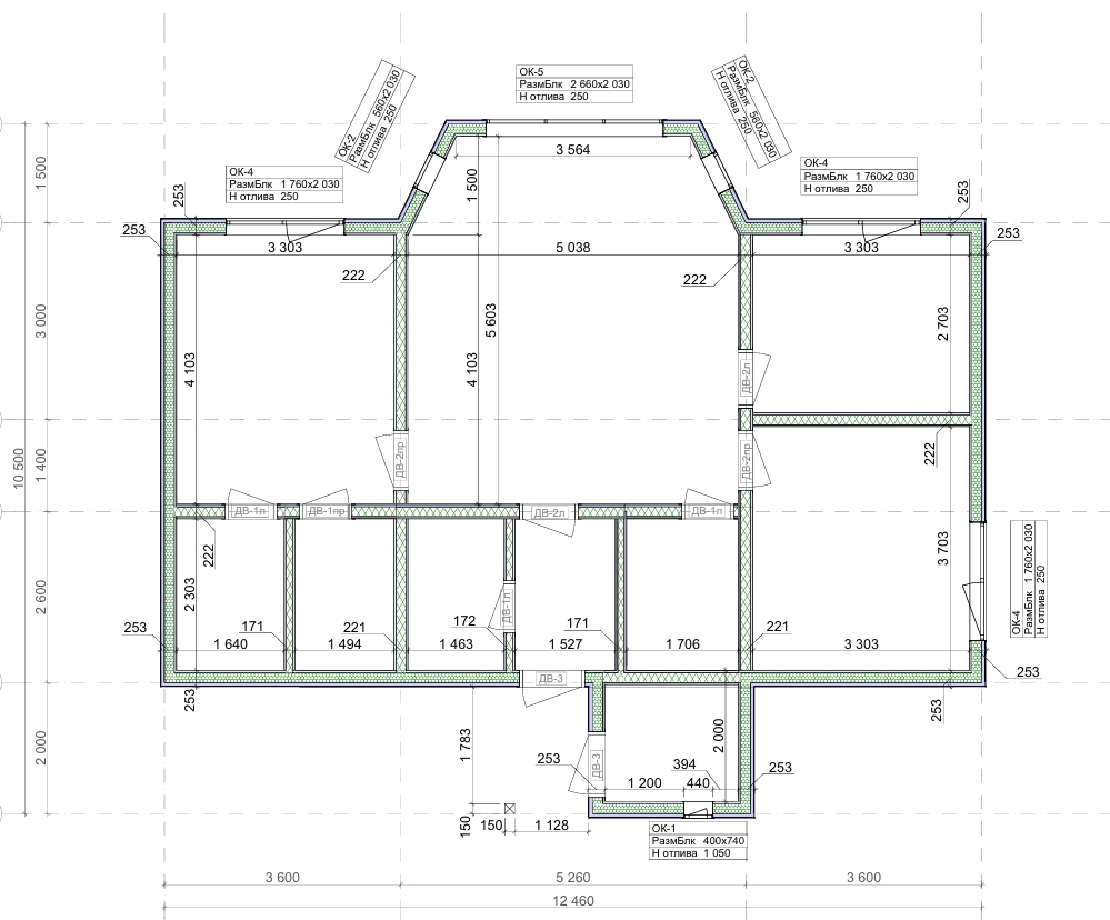
Дом одноэтажный

Описание

Дом одноэтажный в классическом стиле, для круглогодичного использования с водяным тёплым полом. Имеет вынесенную за габариты дома котельную и крыльцо, с отдельной крышей. Крыша имеет уклон 18градусов. Фундамент - ж/б сваи. Размеры в осях 10.5х12.4м. Высота 1-го этажа 2,59м. Кухня-гостинная со вторым светом, максимальная высота 4,7м

Решение

В ходе работы над проектом были применены: расчёты нагрузок в каркасе; работа в программе Архикад; работа и согласования с заказчиком.

Результат

В результате мы получили готовый объект, который был принят заказчиком и построен.

Презентация проекта

4.jpg
1.jpg
5.jpg

Оценили проект:

0