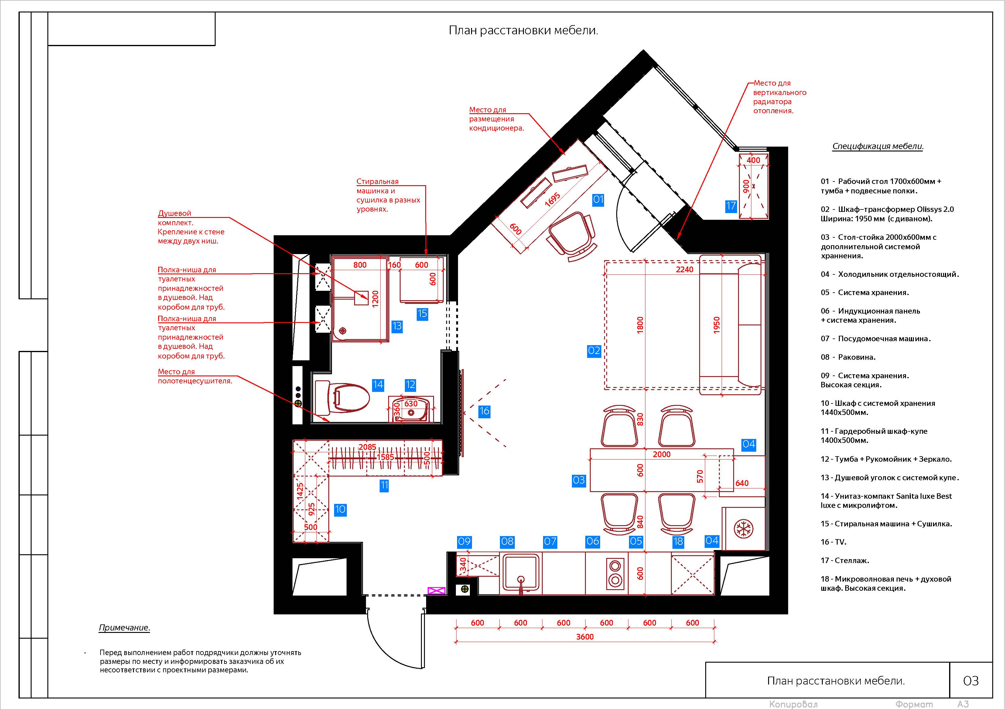
План расстановки мебели квартир и домов.
Для полной функциональности этого сайта необходимо включить JavaScript.
Москва
Визуальные решения
ARHIBOX Анна
arhibox
Top 10
Рейтинг: 6 368
Верифицирован через Сбер ID
Всего отзывов:
13
0
Профессионализм:
10
Коммуникация:
10
Выполнено заданий:
20
Нейросаммари
Надежность:
Использовал:
Работал по Безопасной сделке
Работ в портфолио:
93
Типовых услуг:
1
Работ на продажу:
0
Зарегистрирован:
26.09.2021
Образование:
Магистратура
Стоимость услуг (руб):
500
за час
150 000
за месяц
Был на сайте:
2026-05-27 в 18:44
Написать ARHIBOX Анна
www.behance.net/arhibox
Предложить работу
Добавить в избранное
Добавить рекомендацию
telegram
Вконтакте
Rutube
Пожаловаться
Дизайн пространства
62
0
План расстановки мебели квартир и домов.
Описание
Решение
Результат
Соавторы
Презентация проекта
Примеры реализации
Описание
План расстановки мебели квартир и домов.
Презентация проекта
Оценили проект:
0
×
Оценили проект
×
Авторизация
Для того чтобы оценивать проекты, вам нужно войти на сайт
Другие проекты
Все проекты
Обмерный план помещений.
Технический проект магазина электроники "T-SMART".
Технический проект квартиры.
FREELANCE.RU
Toggle navigation
Нанять фрилансера
Заказчику
Каталог фрилансеров
Каталог PRO
Каталог студий
Каталог услуг
Каталог работ
Виртуальный HR
Умный поиск
Провести конкурс
Разместить задание
Найти работу
Найти задание
Присоединиться к команде
Участвовать в конкурсе
Предложить услугу
Вход
Разместить задание
▲