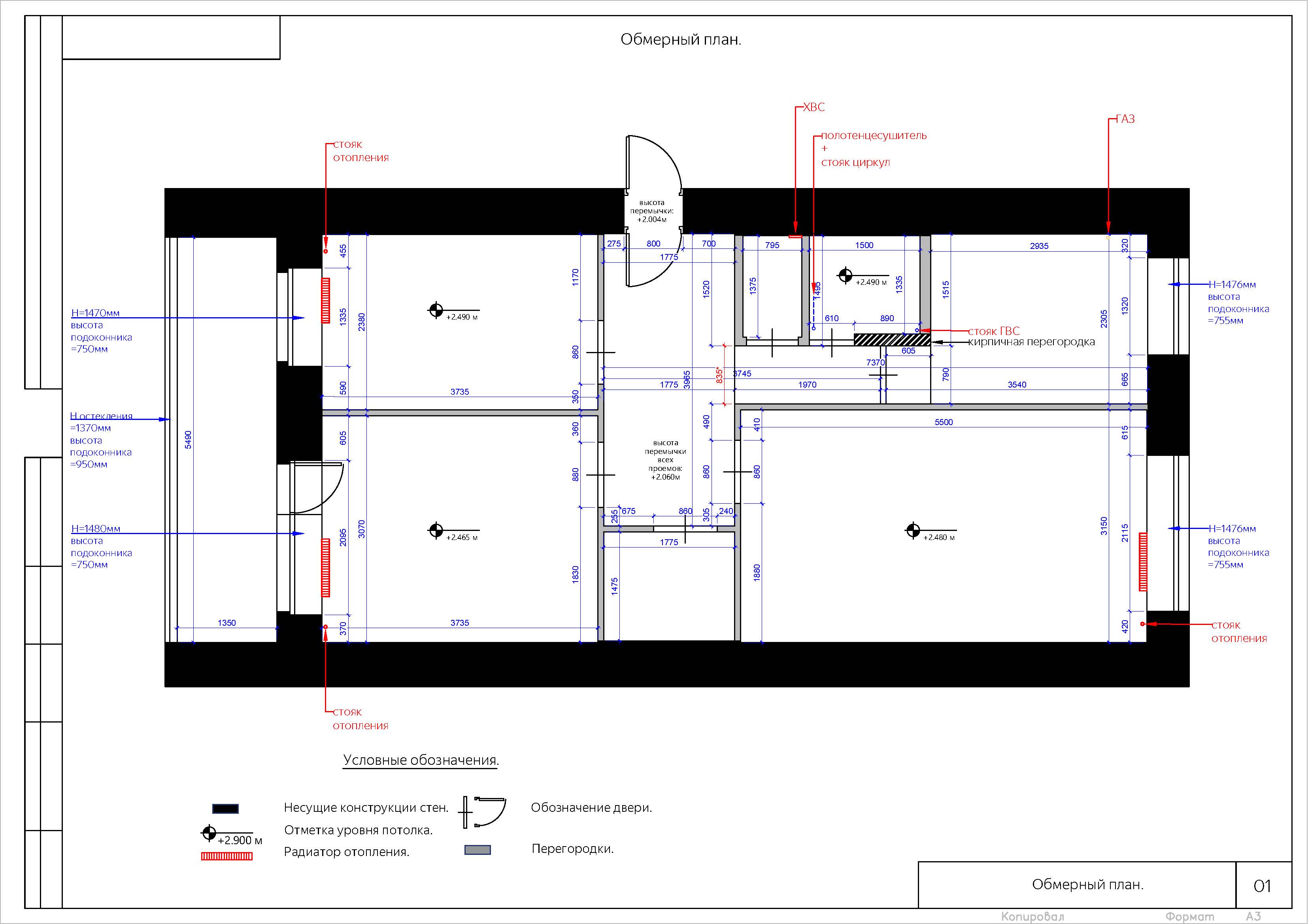
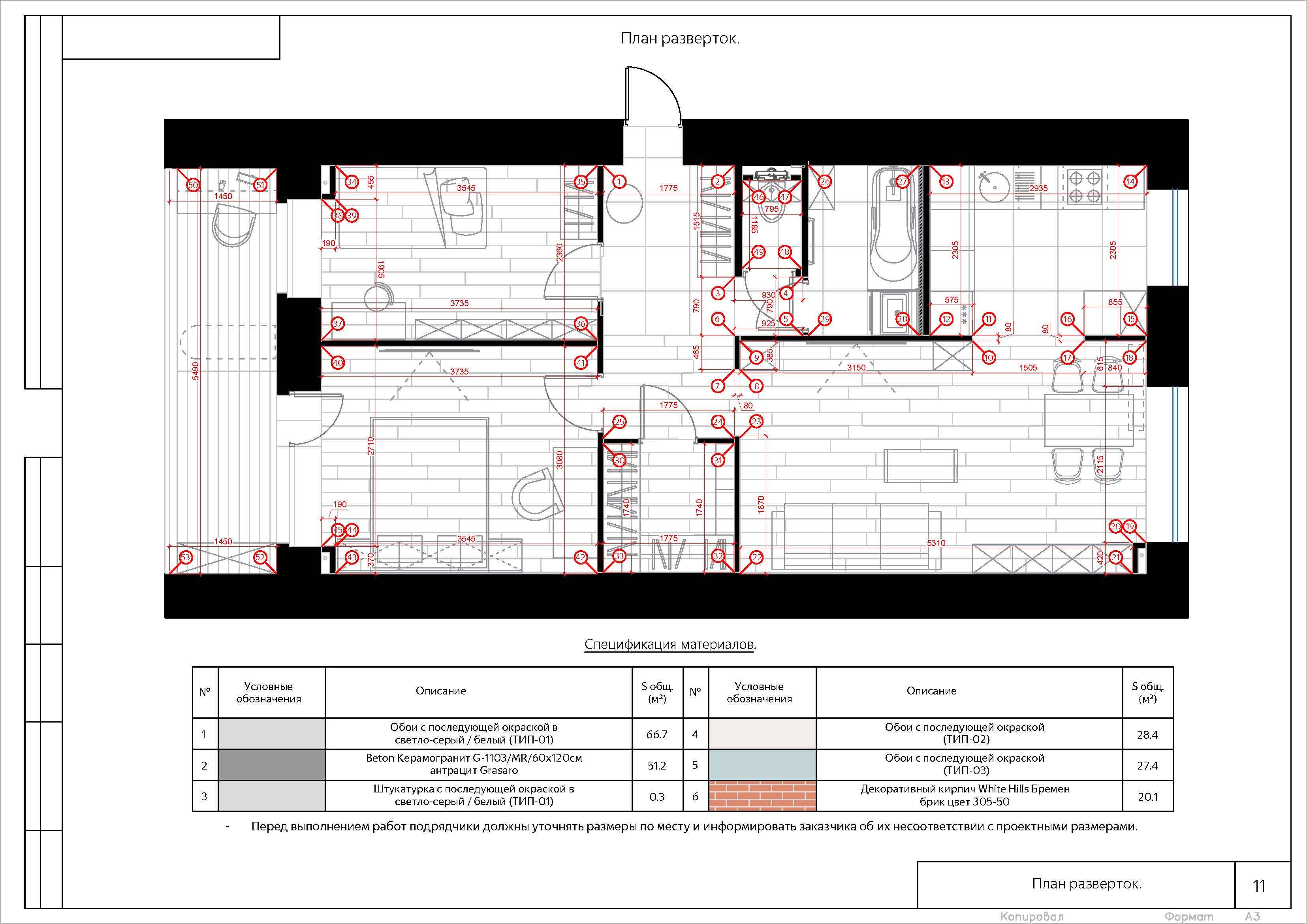
Технический проект квартиры.
Для полной функциональности этого сайта необходимо включить JavaScript.
Москва
Визуальные решения
ARHIBOX Анна
arhibox
Top 10
Рейтинг: 6 294
Верифицирован через Сбер ID
Всего отзывов:
13
0
Профессионализм:
10
Коммуникация:
10
Выполнено заданий:
20
Нейросаммари
Надежность:
Использовал:
Работал по Безопасной сделке
Работ в портфолио:
91
Типовых услуг:
1
Работ на продажу:
0
Зарегистрирован:
26.09.2021
Образование:
Магистратура
Стоимость услуг (руб):
500
за час
150 000
за месяц
Был на сайте:
2026-04-16 в 16:09
inbox
telegram
www.behance.net/arhibox
Вконтакте
Rutube
Предложить работу
Добавить в избранное
Добавить рекомендацию
Пожаловаться
Графический дизайн
56
0
Технический проект квартиры.
Описание
Решение
Результат
Соавторы
Презентация проекта
Примеры реализации
Описание
Технический проект квартиры.
Презентация проекта
Оценили проект:
0
×
Оценили проект
×
Авторизация
Для того чтобы оценивать проекты, вам нужно войти на сайт
Другие проекты
Все проекты
Дизайн клиник
Технический проект санузла.
Дизайн интерьера
FREELANCE.RU
Toggle navigation
Нанять фрилансера
Заказчику
Каталог фрилансеров
Каталог PRO
Каталог студий
Каталог услуг
Каталог работ
Виртуальный HR
Умный поиск
Провести конкурс
Разместить задание
Найти работу
Найти задание
Присоединиться к команде
Участвовать в конкурсе
Предложить услугу
Вход
Разместить задание
▲