Ваши идеи — наше вдохновение

Ксения Брус ksyasya27

Рейтинг: 1 410
не верифицирован
Всего отзывов: 15 0
Профессионализм: 10 Коммуникация: 10
  • Активность:
  • Работ в портфолио: 64
  • Типовых услуг: 1
  • Работ на продажу: 0
  • Возраст: 47 лет
  • Стаж работы: 24 года
  • Зарегистрирован: 03.02.2017
  • Образование: Cпециалитет
  • Юридический статус:Самозанятый
Была на сайте:

Реконструкция жилого дома в Писательском посёлке

Описание

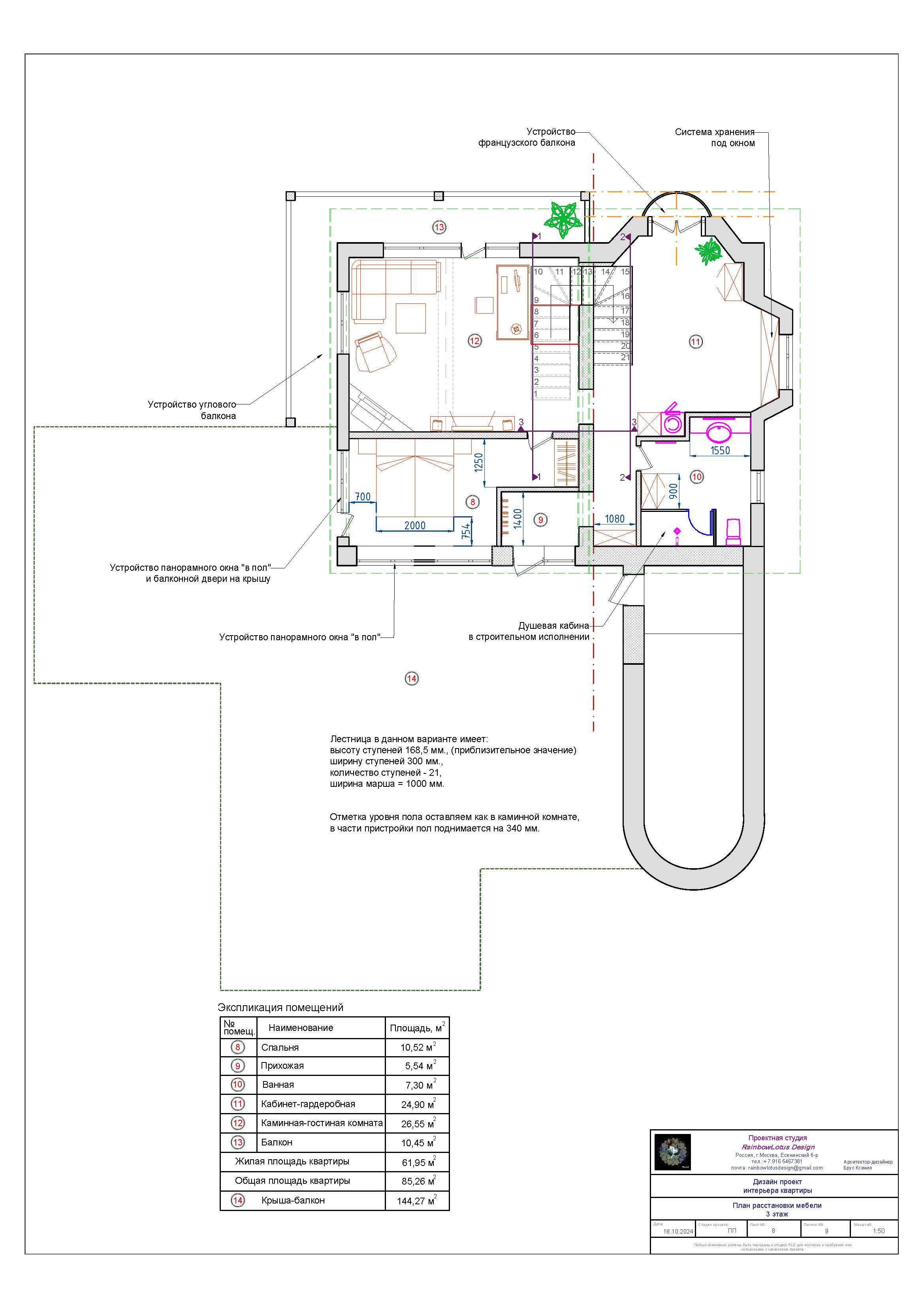
Задача была перестроить трёхэтажное здание в Писательском посёлке "Внуково" под запросы владельца. Были заказаны картинки на согласование.

Решение

Для начала нами был произведён эскизный проект реконструкции двухэтажной квартиры в существующем здании 50-х гг. Запроектирован перенос лестницы, пристройка балкона и переделка крыши с целью поднятия потолка.

Результат

В результате эскизный проект был отправлен конструкторскому бюро, которое исследовало все существующие конструкции и предложило проект, который можно пускать в разработку архитекторам.

Презентация проекта

Cam 2 (1).jpg
Cam 3 (1).jpg
расстановка мебели_2 этаж.jpg
расстановка мебели_3 этаж.jpg

Оценили проект:

0