Проектирование тоннеля
Для полной функциональности этого сайта необходимо включить JavaScript.
Челябинск
37 лет
На сайте с: 21.05.2014
От идеи до готовых чертежей, телеграмм @anwta1
Анна Мальцева
annamaltceva
Рейтинг: 2 635
Паспорт верифицирован
Всего отзывов:
3
0
Профессионализм:
10
Коммуникация:
10
Выполнила заданий:
4
Нейросаммари
Надежность:
Использовала:
Работала по Безопасной сделке
Работ в портфолио:
20
Типовых услуг:
1
Работ на продажу:
2
Образование:
Cпециалитет
Стаж работы:
14 лет
Тип занятости:
Полный фриланс
Юридический статус:
Самозанятый
Была на сайте:
2025-12-04 в 20:23
89507344854
inbox
telegram
anwta@mail.ru
Предложить работу
Добавить в избранное
Добавить рекомендацию
Пожаловаться
Инженерия
58
0
Проектирование тоннеля
Описание
Решение
Результат
Соавторы
Презентация проекта
Примеры реализации
Описание
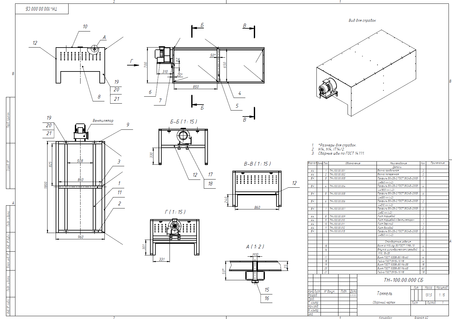
Тоннель с вентилятором
Презентация проекта
Оценили проект:
0
×
Оценили проект
×
Авторизация
Для того чтобы оценивать проекты, вам нужно войти на сайт
Другие проекты
Все проекты
Расчет необходимого материала для изготовления конструкции.
Приспособление
Металлоконструкция
FREELANCE.RU
Toggle navigation
Нанять фрилансера
Заказчику
Найти по специализации
Найти по услугам
Провести конкурс
Разместить задание
Собрать команду
Другое
Найти работу
Фрилансеру
Найти задание
Присоединиться к команде
Участвовать в конкурсе
Другое
Возможности
Для заказчика
Для фрилансера
Вход
Разместить задание
▲