СПЕЦИАЛИЗИРУЮСЬ НА ДИЗАЙНЕ И ДЕКОРИРОВАНИИ ИНТЕРЬЕРОВ

Светлана Люзина luzinasvetlana

Рейтинг: 3 181
Паспорт верифицирован
Всего отзывов: 7 0
Профессионализм: 10 Коммуникация: 10
Выполнила заданий: 8
  • Работ в портфолио: 179
  • Типовых услуг: 6
  • Работ на продажу: 0
  • Стаж работы: 28 лет
  • Зарегистрирован: 08.07.2020
  • Образование: Магистратура
  • Стоимость услуг (руб): 1 000 за час 100 000 за месяц
Была на сайте:

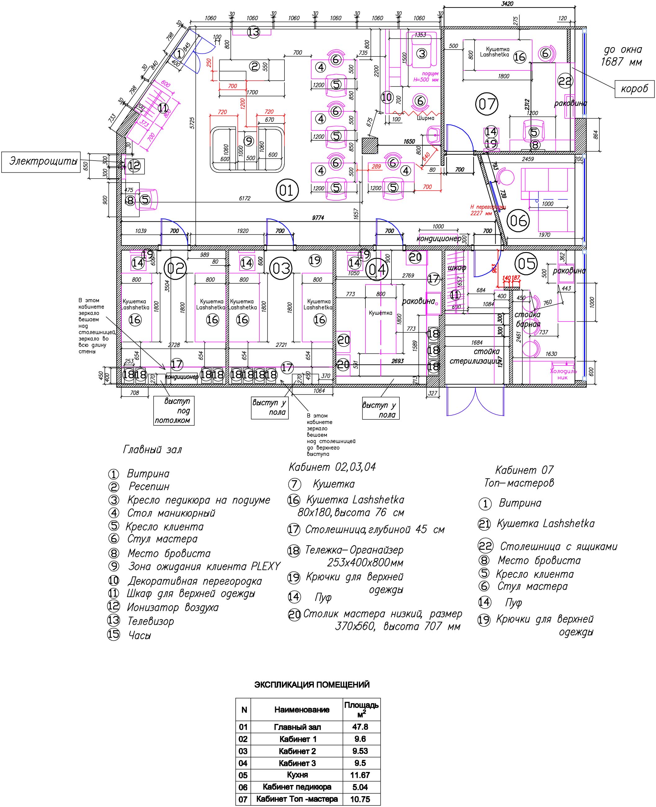
Студия красоты и наращивыния ресниц 110 м.кв в торговом комплексе

Описание

Студия красоты в фирменных цветах салона,в современном стиле.Выполнено по бренд-буку компании.В салоне 5 кабинетов мастеров, зона клиентов и маникюрные столы находятся в одном помещении, главное помещение зонируется

Решение

Использованы фирменные цвета компании так,чтобы они гармонично вписались в пространство.Разделение пространства на кабинеты с учетом требования СЭС

Результат

получился функциональный,удобный салон-студия ,в который клиентам хочется возвращаться

Презентация проекта

салан красоты.jpg
Салон6.jpg
Салон4.jpg
Бровист.jpg
1 (2).jpg
Педикюр.jpg
4 .jpg
3 (3).jpg
2 (3).jpg
Кухня2.jpg

Оценили проект:

0