Рейтинг: 169
не верифицирован
Всего отзывов: 1 0
Профессионализм: 10 Коммуникация: 10
Выполнила заданий: 1
  • Работ в портфолио: 5
  • Типовых услуг: 0
  • Работ на продажу: 0
  • Возраст: 33 года
  • Стаж работы: 11 лет
  • Зарегистрирован: 01.08.2025
  • Образование: Cпециалитет
  • Юридический статус:Частное лицо
Была на сайте:

Эскизный проект частного дома

Описание

Разработка эскизного проекта частного дома для дальнейшего строительства.

Презентация проекта

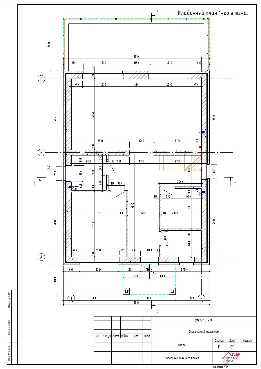
Проект_Титан_гараж баня - Лист - 05 - Кладочный план 1-го этажа.
Проект_Титан_гараж баня - Лист - 01 - Общие данные.jpg
Проект_Титан_гараж баня - Лист - 09 - Разрез 1-1.jpg

Оценили проект:

0