Рейтинг: 1 211
не верифицирован
Всего отзывов: 0
  • Работ в портфолио: 1
  • Типовых услуг: 2
  • Работ на продажу: 0
  • Образование: Бакалавриат
  • Тип занятости: Полный фриланс
  • Юридический статус:Частное лицо
Был на сайте:

Дизайн проект капитального ремонта 3х комнатной квартиры

Описание

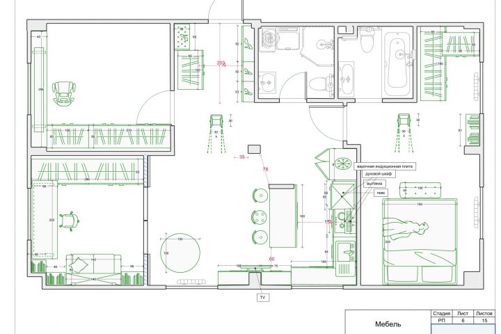
Задача состояла в том, чтобы продумать планировку будущей квартиры таким образом, чтобы в хозяйской спальне был собственный санузел. При этом нужно было решить проблему пользования туалетом и раковиной гостями, не превращая спальню в проходную комнату. Обязательные требования к каждой комнате: система хранения, ТВ-зона, спальное место, рабочий стол, достаточное количество розеток в разных местах. Пожелания по кухне: двустворчатый холодильник с ледогенератором, винный шкаф, остров. Необходимо также предусмотреть рабочий кабинет и гостевую спальню с возможностью переоборудования в детскую комнату. И всё это с учётом сложной конструкции дома, а именно несущих пилонов по углам квартиры и в центре, а также железных двутавров на этих пилонах, с обязательным условием сохранения максимальной высоты помещений.

Решение

Было решено разместить в квартире два санузла. Основная задача состояла в том, чтобы разместить оба санузла и кухню вокруг системы водоотведения (это важно, так как диаметр фановой трубы от унитаза составляет 110 мм). Для этого было рассмотрено более пяти вариантов планировки. После фиксации расположения санузлов на плане на остальной площади выделили место для кухни-гостиной, спальни, кабинета и ещё одной спальни. Границы каждого помещения корректировались до тех пор, пока не было найдено эргономичное расположение мебели. Затем, с учётом расположения мебели, были размещены розетки и освещение. Вся мебель была разработана с учётом особенностей помещения, то есть бетонных пилонов и двутавров, чтобы скрыть выпирающие части конструкции дома.

Результат

В результате проделанной работы удалось создать функциональную и удобную планировку квартиры, полностью отвечающую требованиям и пожеланиям заказчика. Главным достижением стало грамотное размещение двух санузлов, обеспечивающее приватность хозяйской спальни и удобство для гостей. При этом удалось учесть все технические ограничения, связанные с конструкцией дома, и максимально эффективно использовать пространство.

Ссылки на примеры реализации

 project7321529.tilda.ws

Презентация проекта

P1734716-HDR.jpg
P1735142-HDR.jpg
P1735310-HDR.jpg
P1735385-HDR.jpg
P1735651.jpg

Оценили проект:

0