Лучший дом для вашей семьи

Андрей Викторович Резепин dom347

Рейтинг: 237
не верифицирован
Всего отзывов: 0
  • Активность:
  • Работ в портфолио: 33
  • Типовых услуг: 0
  • Работ на продажу: 1
  • Стаж работы: 23 года
Был на сайте:

Готовый проект дома 184 кв.м // Артикул ЮМ-318

Описание

Готовый проект дома 184 кв.м // Артикул ЮМ-318

Решение

Готовый проект дома 184 кв.м // Артикул ЮМ-318

Результат

Готовый проект дома 184 кв.м // Артикул ЮМ-318
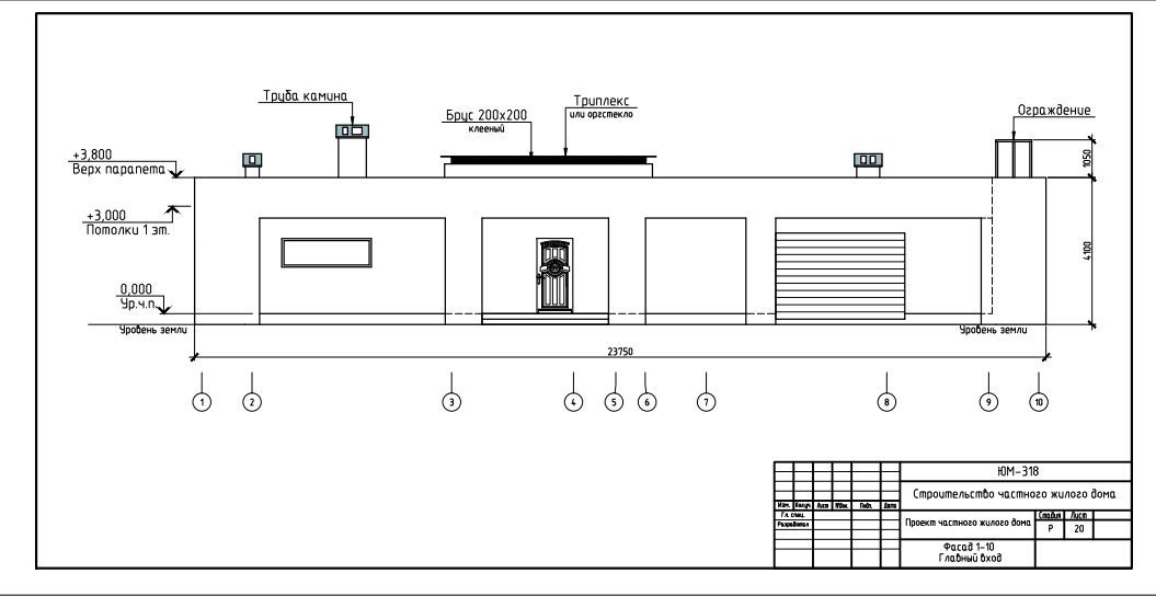
Оригинальный коттедж, удобное расположение комнат, рассчитаны все материалы вид и количество.
Есть внутренний дворик. Крытая терраса вокруг всего дома.
Высота потолков 3м
В проект входят:
1. 50 листов чертежей доступных для понимания строительной бригаде любого уровня. Формат А4. Разделы КЖ и АР - т.е. фундамент, стены, утепленная кровля.
2. Схемы коммуникаций: Электричество, отопление, вентиляция, водопровод, канализация, газоснабжение.
3. Расчет количества материалов. Подробный – 110 пунктов калькуляции.
4. Вы можете письменно задать вопросы по проекту - отвечу подробно.

Состав фундамента: ж/бетонная плита
Состав стен: автоклавный газобетон, лицевой кирпич, ж/б опоры
Состав кровли: плоская ж/б плита, утеплитель, стяжка, гидроизоляция

Опыт проектирования: 17 лет
Опыт строительства: 22 года

Все можно сделать по интернету. Оформить и оплатить.

Готовый проект Вы сможете рассылать его в неограниченное
количество строительных компаний и выбрать лучшую цену на строительство.

Получив подробный расчет материалов, Вы сможете узнавать и записывать
текущие цены и будете точно знать какую сумму Вы потратите на строительные материалы.

У меня есть опыт строительства домов,
поэтому я не просто "рисую",
а понимаю, как это будет построено и
я могу вас проконсультировать Вас в процессе
строительства по моему проекту.
Проект разработан так, что если строить точно по чертежам, то получится именно такой дом.
Проектировал и строил дома - для Перми, Воронежа, Москвы, Тулы,
С.-Петербурга, Челябинска, Калининграда, Сахалина, Алтая, Татарстана, Смоленска и других городов.
Есть сайт с другими моими проектами.
В проекте есть абсолютно вся информация, которая потребуется Вашим строителям для его реализации.
#готовыйпроект #готовыйпроектдома #готовыйпроекткоттеджа #стиль райта #построить дом #дизайн #кирпич #бревно #пила #хай тек #куб #дом с плоской кровлей #небольшой домик #стиль прерии #современный дом #барн-хаус #фундамент #кровля #ипотека #хорошие дома #лучший дом #архитектор #конструктор

Презентация проекта

1 - копия.jpg
2.jpg
6.jpg
План 1 этажа.jpg
Фасад.jpg

Оценили проект:

0