Готова приступить к работе!

Анна Соколова annagmb

Рейтинг: 55
не верифицирован
Всего отзывов: 0
  • Работ в портфолио: 5
  • Типовых услуг: 0
  • Работ на продажу: 0
Была на сайте:

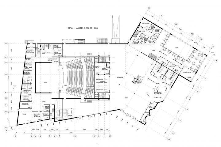
Проектирование и разработка чертежей

Описание

Проектирование и разработка чертежей, а именно:
- Планы
- Фасады
- Разрезы
- Генпланы

Чертежи созданы в программе Archicad

Презентация проекта

1.jpg
3.jpg
2.jpg
пгголп.jpg
5.jpg
4.jpg
рпр.jpg
оеоеео.jpg
втовтво.jpg
ааа.jpg

Оценили проект:

0