Интерьер с заботой о вас

Светлана Мороз Svetlana_Cherepkova

Рейтинг: 2 002
Паспорт верифицирован
Всего отзывов: 5 0
Профессионализм: 10 Коммуникация: 10
Выполнила заданий: 4
  • Активность:
  • Работ в портфолио: 94
  • Типовых услуг: 6
  • Работ на продажу: 0
  • Образование: Cпециалитет
  • Стаж работы: 10 лет
  • Тип занятости: Полный фриланс
  • Юридический статус:Самозанятый
Была на сайте:

Описание

Работа над дизайн-проектом включает в себя 4 основных этапа:

1. Разработка планировочных решений
2. Разработка стилевой концепции (коллажей)
3. Создание фотореалистичных 3D визуализаций
4. Разработка альбома чертежей для строителей и подготовка ведомости отделочных материалов, мебели, освещения и декора

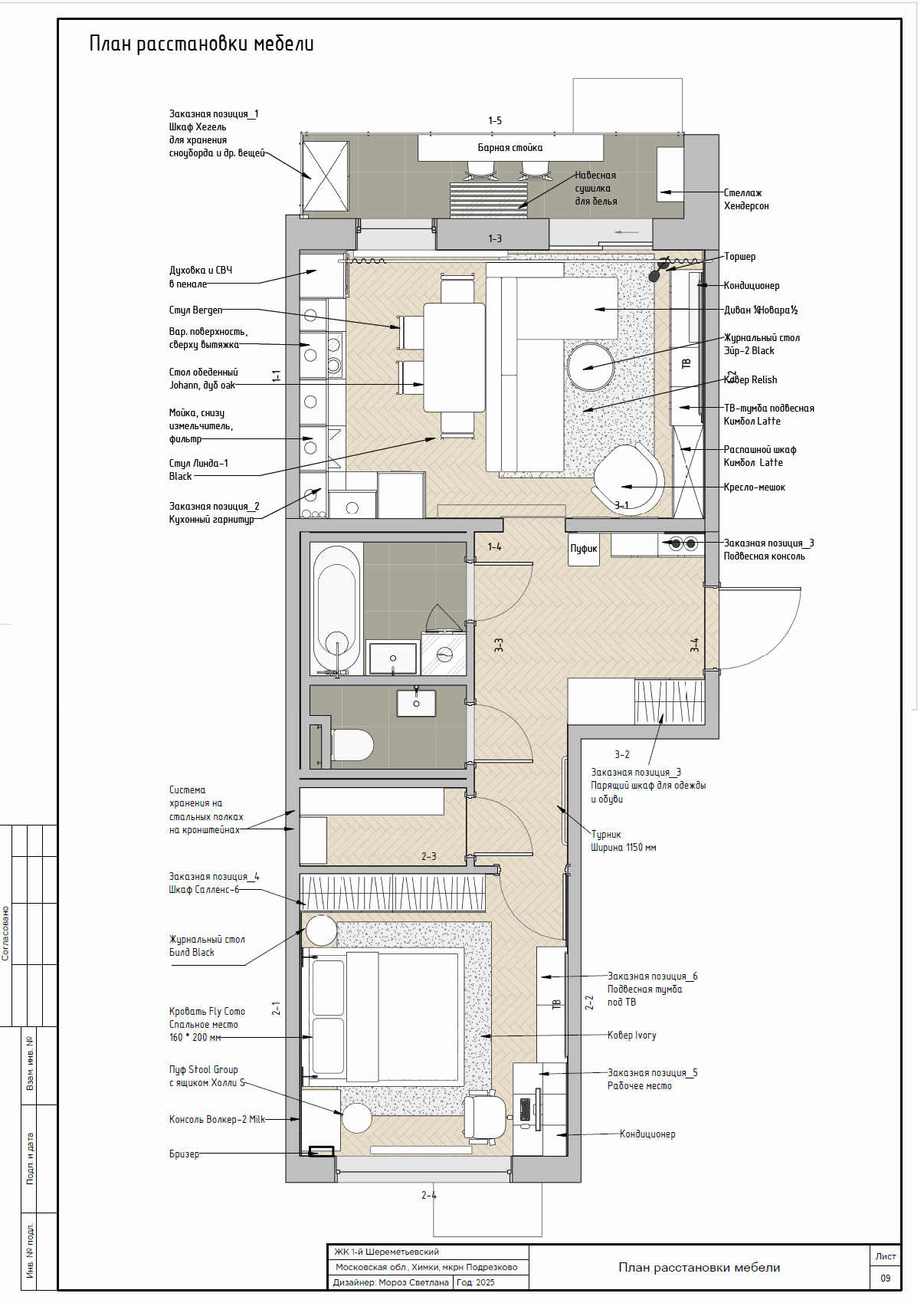
На первом этапе разрабатываю и предлагаю вам 3-4 варианта планировочных решений с учётом потребностей вашей семьи и соблюдения всех норм эргономики.

Это творчески-математический этап, в процессе которого обычно рождается целый ворох вариантов планировок, но вам я предлагаю только самые продуманные, классные и оптимальные. В результате вы получаете решение главной задачи: план помещения + ваши пожелания = несколько вариантов расстановки мебели и оборудования для каждой комнаты. Понравившийся вариант обсуждаем и доводим до совершенства.

Срок выполнения этапа - 3-5 рабочих дней для каждого помещения.
Количество правок - 3 этапа.

Ссылки на примеры реализации

 svetlanamoroz.ru/services

Презентация проекта

04 3D.jpg
02 Планировка.jpg
03 3D план.jpg
01.jpg
02.jpg
03.jpg
Вдох-выдох_Планировка.jpg
12 Квартира Пушкин_3D Кухня-гостиная.jpg
12 Квартира Пушкин_3D Детская.jpg
12 Квартира Пушкин_3D Спальня.jpg

Оценили проект:

0