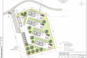
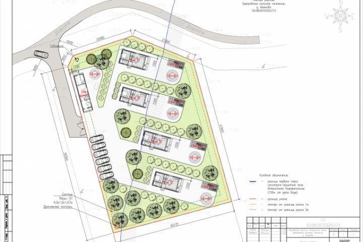
Генплан участка в д.Алехново
Для полной функциональности этого сайта необходимо включить JavaScript.
Санкт-Петербург
На сайте с: 27.09.2017
https://manshinroman.wixsite.com/sadsp
RomanManshin
Рейтинг: 256
не верифицирован
Всего отзывов:
7
0
Выполнил заданий:
9
Опубликовал заданий:
1
Нейросаммари
Активность:
Работ в портфолио:
186
Типовых услуг:
0
Работ на продажу:
0
Был на сайте:
2026-01-16 в 21:53
Предложить работу
Добавить в избранное
Добавить рекомендацию
Пожаловаться
Дизайн пространства
45
0
Генплан участка в д.Алехново
Используемые навыки:
Ландшафтный дизайн
Описание
Решение
Результат
Соавторы
Презентация проекта
Примеры реализации
Описание
Генплан участка в д.Алехново
Ссылки на примеры реализации
www.sadsp.org
Презентация проекта
Оценили проект:
0
×
Оценили проект
×
Авторизация
Для того чтобы оценивать проекты, вам нужно войти на сайт
Другие проекты
Все проекты
Визуализация радиовышки в Крыму, мыс Сарыч
Дизайн проект коттеджа в поселке "Чайка"
Проект кофейни в торговом центре.
FREELANCE.RU
Toggle navigation
Нанять фрилансера
Заказчику
Найти по специализации
Найти по услугам
Провести конкурс
Разместить задание
Виртуальный HR
Другое
Найти работу
Фрилансеру
Найти задание
Присоединиться к команде
Участвовать в конкурсе
Предложить услугу
Другое
Возможности
Для заказчика
Для фрилансера
Вход
Разместить задание
▲