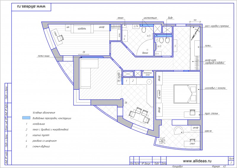
генеральный план квартиры ПТ-44
Для полной функциональности этого сайта необходимо включить JavaScript.
Москва
На сайте с: 21.03.2015
Нет предела совершенству
Мак Бут
Event-diz
Рейтинг: 236
не верифицирован
Всего отзывов:
19
3
Выполнено заданий:
20
Опубликовано заданий:
12
Работ в портфолио:
106
Типовых услуг:
0
Работ на продажу:
0
Был на сайте:
2017-02-23 в 11:59
Предложить работу
Добавить в избранное
Добавить рекомендацию
Пожаловаться
Дизайн пространства
32
0
генеральный план квартиры ПТ-44
Используемые навыки:
Архитектурное проектирование
Описание
Решение
Результат
Соавторы
Презентация проекта
Примеры реализации
Описание
с балконом
Презентация проекта
Оценили проект:
0
×
Оценили проект
×
Авторизация
Для того чтобы оценивать проекты, вам нужно войти на сайт
Другие проекты
Все проекты
Консалтинговая группа "Что делать консалт"-2
лендинг на англ - 2
эмблема хоккейной команды
FREELANCE.RU
Toggle navigation
Нанять фрилансера
Заказчику
Найти по специализации
Найти по услугам
Провести конкурс
Разместить задание
Другое
Найти работу
Фрилансеру
Найти задание
Присоединиться к команде
Участвовать в конкурсе
Другое
Возможности
Для заказчика
Для фрилансера
Вход
Разместить задание
▲