ab actu ad potentiam

Arche Vista ArcheVista

Рейтинг: 137
не верифицирован
Всего отзывов: 2 0
Выполнено заданий: 1
Опубликовано заданий: 1
  • Работ в портфолио: 97
  • Типовых услуг: 0
  • Работ на продажу: 0
  • Зарегистрирован: 06.05.2014
Был на сайте:

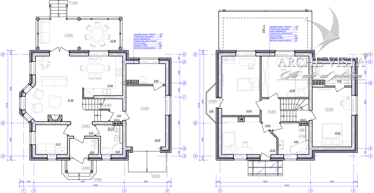
Загородный дом 001

Описание

Состав проекта:
- Раздел АР
- Раздел КР (чертежи на фундаменты - монолитная лента, перекрытие - многопустотные ПК)

Презентация проекта

pic1931588.jpg

Оценили проект:

0