Лучший дом для вашей семьи

Андрей Викторович Резепин dom347

Рейтинг: 237
не верифицирован
Всего отзывов: 0
  • Активность:
  • Работ в портфолио: 33
  • Типовых услуг: 0
  • Работ на продажу: 1
  • Стаж работы: 23 года
Был на сайте:

Готовый проект коттеджа 120 м2 / Артикул AN-47

Описание

Очень красивый и компактный дом с гаражом, удобное расположение комнат, рассчитаны все материалы вид и количество.
(Проектировал сам)
Готовый проект дома 120 м² + гараж 25 кв.м + котельная 14 кв.м
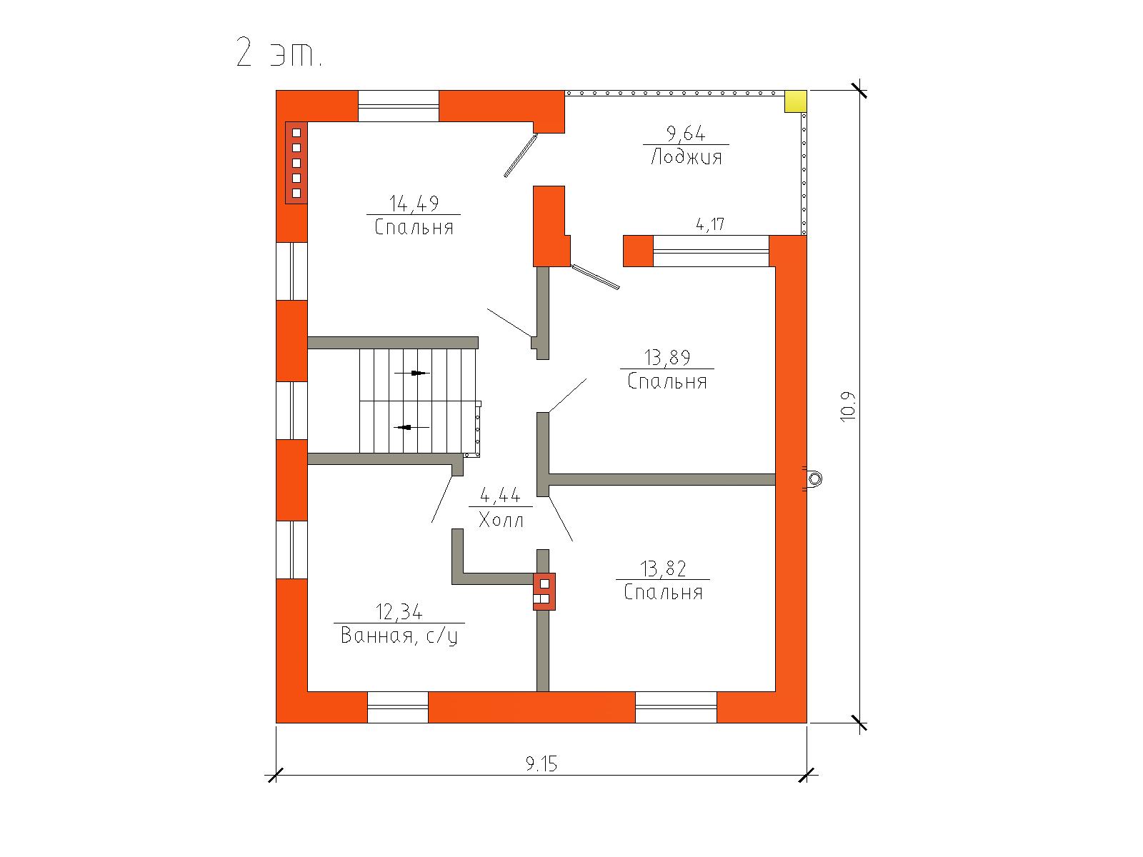
Двухэтажный жилой дом мансардного типа. На первом этаже находится прихожая, гостиная, кухня-столовая, сан.узел, топочная, гараж, холл, терраса. На мансардном этаже - холл, три спальни, ванная, терраса.
Проект дома разработан для строительства в климатическом поясе со следующими показателями:
- Расчетная температура наружного воздуха: - 30°С
- Снег : 320кг/кв.м. - Ветер: 23кг/кв.м.
Камин: да. Гараж: да. Высота 1 этажа: 2,800 м.
Высота в мансарде: от 1,700 м. до 2,800 м. Высота дома в коньке: 8,700 м от уровня земли.
Фундаменты: монолитные ж/б. Наружные стены: пеноблок или газоблок, толщина 400 мм.+ воздушный зазор + лицевой кирпич 120мм = 540мм
Перегородки: газоблок, толщина 200 мм.
Перекрытие: монолитные железобетонные. Конструкция крыши: деревянная с пропиткой.
Лестница: деревянная.
Кровля: вентилируемая, покрытие - металлочерепица.
Фасад: лицевой кирпич.
В проект входят:
1. 45 листов понятных чертежей - КЖ и АР(фундамент, стены, утепленная кровля)
2. Расчет количества и стоимости материалов.
3. Вы можете письменно задать вопросы по строительству и проекту.
4. Консультации по телефону во время строительства.

Невысокая стоимость проекта обусловлена тем, что он уже готов и мне остается только передать его Вам.

Опыт проектирования: 10 лет
Опыт строительства: 20 лет

Вы можете внести изменения в проект дома - стоимость 2-7 тыс.руб.
Невысокая стоимость проекта обусловлена тем, что он уже готов и мне остается только передать его Вам.
1. Есть зеркальный вариант с другой планировкой.
2. Есть вариант с подвалом - 12 кв.м с чистым пологим спуском из кухни.
3. Есть вариант с подвалом 6 кв.м - спуск через люк в гараже.
Также разработаю проект дома по Вашему заказу.

Ссылки на примеры реализации

 dom347.ru/katalog-proektov/proekty-domov-kupit/got...

Презентация проекта

pic3489836.jpg
Фасад  АН-47.jpg
План 1 эт.- ДЕМО - АН-47.jpg
План 2 эт.- ДЕМО - АН-47.jpg
Ведомость чертежей АН-47.jpg

Оценили проект:

0