Лучший дом для вашей семьи

Андрей Викторович Резепин dom347

Рейтинг: 237
не верифицирован
Всего отзывов: 0
  • Активность:
  • Работ в портфолио: 33
  • Типовых услуг: 0
  • Работ на продажу: 1
  • Стаж работы: 23 года
Был на сайте:

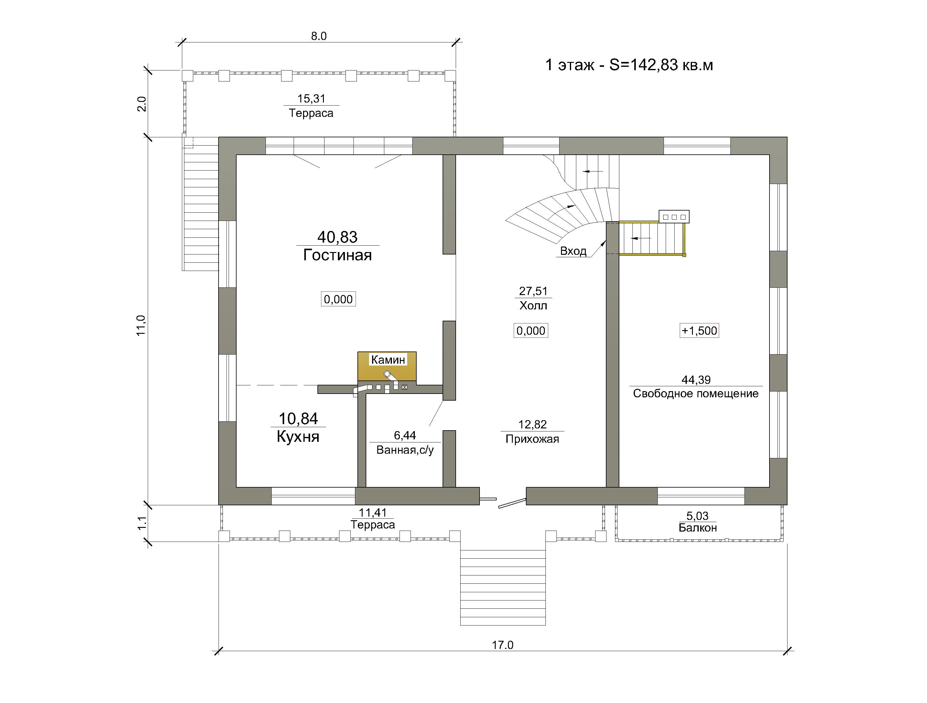
Готовый проект дома Шале 250 кв. м / Артикул И-51

Описание

Оригинальный полноценный проект дома "Альпийское шале", с гаражом, удобное расположение комнат, рассчитаны все материалы вид и количество.
Общая площадь 250 кв.м
С подвалом и вторым гаражом - 370 кв.м

Есть все узлы, выполнены в архитектурной программе.
Материал стен - сложный, комбинированный
Можно применить кирпич, газобетон, керамзитобетон, поризованные керамические блоки.
Облицовка: камень, дерево.

В проект входят:
1. 54 листа понятных чертежей КЖ и АР (фундамент, стены, утепленная кровля)
2. Расчет количества и стоимости материалов.
3. Вы можете задать вопросы по строительству и проекту - отвечу подробно.
4. Консультации по телефону во время строительства.

Опыт проектирования: 10 лет
Опыт строительства: 20 лет

Невысокая стоимость проекта обусловлена тем, что он уже готов и мне остается только передать его Вам.
Дом спроектирован для размещения на склоне - от главного фасада к задней части дома.
Можно разметить и на ровном участке.

ВОЗМОЖНА ПЕРЕПЛАНИРОВКА.

Также проектирую на заказ

Есть другие готовые проекты

Ссылки на примеры реализации

 dom347.ru/katalog-proektov/proekty-domov-kupit/got...

Презентация проекта

pic3490402.jpg
Фасад И-51 . JPG.jpg
План цоколя - И-51.jpg
План 1 эт.- И-51.jpg
План мансарды - И-51.jpg
Ведомость чертежей  И-51 в jpg.jpg

Оценили проект:

0