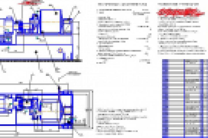
стенд
Для полной функциональности этого сайта необходимо включить JavaScript.
Санкт-Петербург
40 лет
На сайте с: 19.03.2016
Опытный инженер-конструктор
Николай Holod
holodna
Рейтинг: 122
не верифицирован
Всего отзывов:
0
Работ в портфолио:
52
Типовых услуг:
0
Работ на продажу:
0
Был на сайте:
2017-06-29 в 10:57
+7 937 083-03-77
inbox
nik.holod86@mail.ru
Предложить работу
Добавить в избранное
Добавить рекомендацию
Пожаловаться
Инженерия
33
0
стенд
Используемые навыки:
Машиностроение
Описание
Решение
Результат
Соавторы
Презентация проекта
Примеры реализации
Описание
Презентация проекта
Оценили проект:
0
×
Оценили проект
×
Авторизация
Для того чтобы оценивать проекты, вам нужно войти на сайт
Другие проекты
Все проекты
Колесо коническое1
Приспособление для сварки
станок для изготовление стеклопластиковых ёмкостей
FREELANCE.RU
Toggle navigation
Нанять фрилансера
Заказчику
Найти по специализации
Найти по услугам
Провести конкурс
Разместить задание
Виртуальный HR
Другое
Найти работу
Фрилансеру
Найти задание
Присоединиться к команде
Участвовать в конкурсе
Предложить услугу
Другое
Возможности
Для заказчика
Для фрилансера
Вход
Разместить задание
▲