Проектирую c 2005 года – ВК, ОВиК, ЭОМ, СС.

Светлана Новошинская novoshinskaya

Рейтинг: 410
Паспорт верифицирован
Всего отзывов: 0
Выполнила заданий: 1
  • Активность:
  • Работ в портфолио: 71
  • Типовых услуг: 0
  • Работ на продажу: 0
Была на сайте:

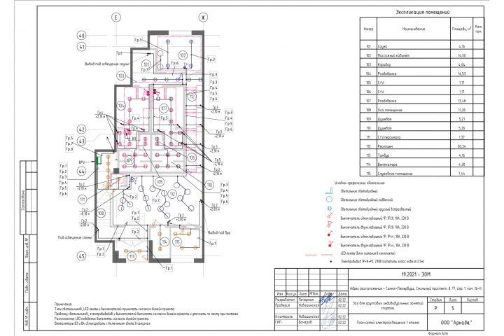
Спортзал

Используемые навыки:

Описание

Электроосвещение и силовое электрооборудование спортивного зала

Презентация проекта

pic4536730.jpg

Оценили проект:

0