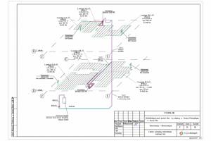
Отопление коттеджа
Для полной функциональности этого сайта необходимо включить JavaScript.
Санкт-Петербург
Проектирую c 2005 года – ВК, ОВиК, ЭОМ, СС.
Светлана Новошинская
novoshinskaya
Рейтинг: 161
Паспорт верифицирован
Всего отзывов:
0
Выполнила заданий:
1
Нейросаммари
Активность:
Работ в портфолио:
71
Типовых услуг:
0
Работ на продажу:
0
Зарегистрирован:
17.03.2014
Была на сайте:
2025-02-04 в 09:35
+7(931)364-66-14
inbox
telegram
whatsapp
novoshinskaya.s@gmail.com
Предложить работу
Добавить в избранное
Добавить рекомендацию
Пожаловаться
Инженерия
44
0
Отопление коттеджа
Используемые навыки:
Теплоснабжение/Отопление/Вентиляция
Описание
Решение
Результат
Соавторы
Презентация проекта
Примеры реализации
Описание
Отопление коттеджа
Презентация проекта
Оценили проект:
0
×
Оценили проект
×
Авторизация
Для того чтобы оценивать проекты, вам нужно войти на сайт
Другие проекты
Все проекты
Водоснабжение и канализация коттеджа
Водоснабжение и канализация коттеджа
Отопление, вентиляция и кондиционирование коттеджа
FREELANCE.RU
Toggle navigation
Нанять фрилансера
Заказчику
Найти по специализации
Найти по услугам
Провести конкурс
Разместить задание
Виртуальный HR
Найти студию
Другое
Найти работу
Фрилансеру
Найти задание
Присоединиться к команде
Участвовать в конкурсе
Предложить услугу
Другое
Возможности
Для заказчика
Для фрилансера
Вход
Разместить задание
▲