Рейтинг: 58
не верифицирован
Всего отзывов: 1 0
Выполнил заданий: 1
  • Работ в портфолио: 3
  • Типовых услуг: 0
  • Работ на продажу: 0
  • Зарегистрирован: 10.07.2016
Был на сайте:

Работа 2889613

Используемые навыки:

Описание

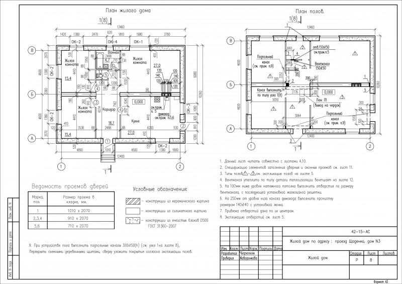
отрисовка чертежей в DWG формате, быстро, качественно, не дорого

Презентация проекта

pic2889613.jpg

Оценили проект:

0