Рейтинг: 2 146
не верифицирован
Всего отзывов: 3 0
Профессионализм: 10 Коммуникация: 10
Выполнил заданий: 2
  • Работ в портфолио: 100
  • Типовых услуг: 2
  • Работ на продажу: 0
  • Стаж работы: 10 лет
  • Зарегистрирован: 01.09.2021
  • Образование: Cпециалитет
  • Юридический статус:Самозанятый
Был на сайте:

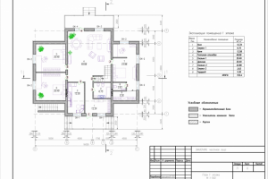
Планировка частного дома 1-й этаж

Используемые навыки:

Описание

Проект индивидуального жилого дома - планировка 1-го этажа по заданию заказчика.

Презентация проекта

pic4386501.jpg

Оценили проект:

0