Создавай мечту !

Олег Жуков Oleg_J

Рейтинг: 180
не верифицирован
Всего отзывов: 1 0
Опубликовал заданий: 8
  • Работ в портфолио: 100
  • Типовых услуг: 1
  • Работ на продажу: 0
  • Возраст: 39 лет
  • Зарегистрирован: 29.09.2011
Был на сайте:

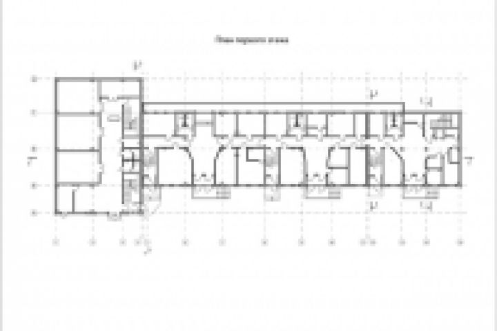
Многофункциональный коммунально-складской комплекс в Митино

Описание

Многофункциональный коммунально-складской комплекс в Митино включает в себя офисы, склад, конюшню, вет. клинику, приют и гостинтцу для животных. Автор проекта.

Презентация проекта

pic1415182.jpg

Оценили проект:

0