Рейтинг: 173
не верифицирован
Всего отзывов: 8 0
Выполнил заданий: 10
  • Работ в портфолио: 63
  • Типовых услуг: 0
  • Работ на продажу: 0
  • Возраст: 43 года
  • Зарегистрирован: 04.03.2014
Был на сайте:

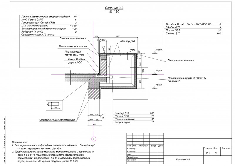
Устройство парапета

Используемые навыки:

Описание

Устройство ограждающего парапета на террасе.
Выполнено в AutoCAD.

Презентация проекта

pic1822134.jpg

Оценили проект:

0