всё проходит... а красота остается

Дарья Матвеева archid

Рейтинг: 210
не верифицирован
Всего отзывов: 0
  • Работ в портфолио: 173
  • Типовых услуг: 0
  • Работ на продажу: 0
  • Зарегистрирован: 14.02.2012
Была на сайте:

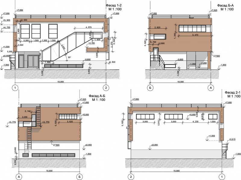
Фасады салона красоты "Мармелад"

Используемые навыки:

Описание

Пример подачи фасадов. Чертеж с тенями и тонированием.

Презентация проекта

pic1039736.jpg

Оценили проект:

0