ВК гостиница (Уральская)
Для полной функциональности этого сайта необходимо включить JavaScript.
Москва
47 лет
На сайте с: 22.08.2011
Проектирую сети водоснабжения и канализации
Олег Нохрин
oleg-nohrin
Рейтинг: 594
не верифицирован
Всего отзывов:
1
0
Нейросаммари
Активность:
Работ в портфолио:
153
Типовых услуг:
0
Работ на продажу:
0
Был на сайте:
2025-12-18 в 12:02
8-909-6735152
inbox
oleg-nohrin@mail.ru
Предложить работу
Добавить в избранное
Добавить рекомендацию
Пожаловаться
Инженерия
45
0
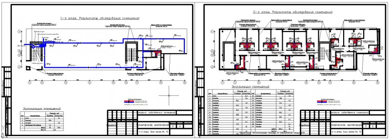
ВК гостиница (Уральская)
Используемые навыки:
Водоснабжение и водоотведение
Описание
Решение
Результат
Соавторы
Презентация проекта
Примеры реализации
Описание
ВК гостиница (Уральская)
Презентация проекта
Оценили проект:
0
×
Оценили проект
×
Авторизация
Для того чтобы оценивать проекты, вам нужно войти на сайт
Другие проекты
Все проекты
Септик 1
НВК перекладка сети (Батайский)
НВК производственный комплекс (Октябрьский)
FREELANCE.RU
Toggle navigation
Нанять фрилансера
Заказчику
Найти по специализации
Найти по услугам
Провести конкурс
Разместить задание
Другое
Найти работу
Фрилансеру
Найти задание
Присоединиться к команде
Участвовать в конкурсе
Другое
Возможности
Для заказчика
Для фрилансера
Вход
Разместить задание
▲