дизайнер интерьера-реставратор https://evahaos.ru/

Надежда Петрова EvaHaos

Рейтинг: 4 200
Паспорт верифицирован
Всего отзывов: 29 0
Профессионализм: 10 Коммуникация: 10
Выполнила заданий: 31
  • Активность:
  • Работ в портфолио: 191
  • Типовых услуг: 12
  • Работ на продажу: 0
  • Возраст: 35 лет
  • Стаж работы: 14 лет
  • Зарегистрирован: 26.09.2017
  • Образование: Среднее профессиональное
  • Юридический статус:Частное лицо
  • Стоимость услуг (руб): 3 000 за час
Была на сайте:

визуализация интерьера

Используемые навыки:

Описание

цель каждого проекта - комфортное проживание в личном пространстве, будь то квартира или частный дом. цель для человека всегда одинаковая: недорого, качественно, красиво, индивидуально и комфортно.

если у вас именно такая цель, то я вам помогу реализовать ее

Решение

дизайн интерьера - это осознанный подход к пространству, использование функциональной мебели, возможность переставить мебель под настроение, самое важное в интерьере - это отражение человека и того, кем он является.

. Я помогу вам воплотить ваши мечты в реальность, учитывая ваш бюджет и потребности.
. Сделаю ту самую инструкцию для ваших работников, которые с легкостью сделают по чертежам ремонт.
. Организую удобный процесс работы: предложу концепцию дизайна, порекомендую ремонтную бригаду - есть проверенная с прямыми руками, выберу мебель, отделочные материалы, авторские картины - не предложу, подготовлю профессиональную инструкцию для реализации будущего.

Результат

результатом нашей работы является инструкция в виде чертежей для ваших строителей, схемы для заказа мебели, ведомость для закупки отделки, мебели и освещения

и красивые картинки для вас, чтобы вы могли увидеть свое будущее

Ссылки на примеры реализации

 evahaos.ru  evahaos.ru/blog/komfortnyj-dizajn-2200-r-m2.html

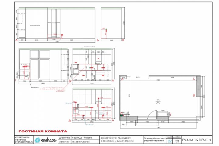
Презентация проекта

визуализация - 3 часть _page-0015.jpg

Оценили проект:

1