Работа 4416481
Для полной функциональности этого сайта необходимо включить JavaScript.
Самара
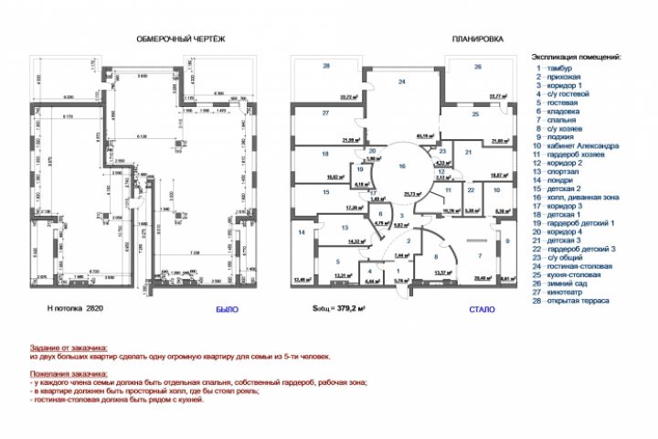
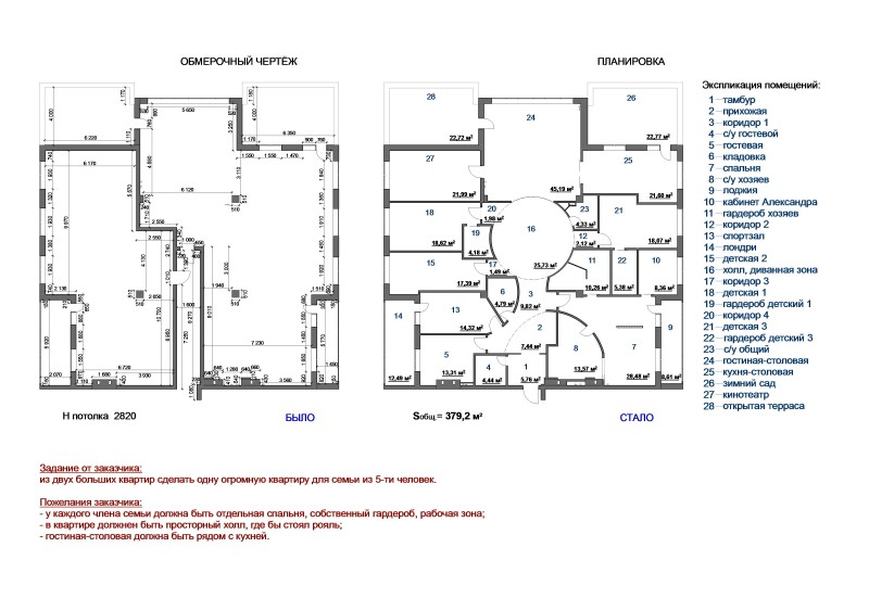
Цель проекта - ЭСТЕТИКА, КОМФОРТ, ЭРГОНОМИКА
Елена Грейскоп
elenagreyskop1968
Top 10
Рейтинг: 7 005
Верифицирован через Сбер ID
Всего отзывов:
10
0
Профессионализм:
9
Коммуникация:
9
Выполнила заданий:
10
Нейросаммари
Работ в портфолио:
244
Типовых услуг:
0
Работ на продажу:
0
Стаж работы:
20 лет
Зарегистрирован:
31.03.2018
Образование:
Магистратура
Стоимость услуг (руб):
1 500
за час
100 000
за месяц
Была на сайте:
2026-03-05 в 17:08
8 960 815 15 68
inbox
telegram
whatsapp
greya_arch@mail.ru
freelance.ru/elenagreyskop1968
Предложить работу
Добавить в избранное
Добавить рекомендацию
Пожаловаться
Дизайн пространства
122
0
Работа 4416481
Используемые навыки:
Архитектурное проектирование
Описание
Решение
Результат
Соавторы
Презентация проекта
Примеры реализации
Описание
Презентация проекта
Оценили проект:
0
×
Оценили проект
×
Авторизация
Для того чтобы оценивать проекты, вам нужно войти на сайт
Другие проекты
Все проекты
Офис в Москве
Коттедж
Работа 4421894
FREELANCE.RU
Toggle navigation
Нанять фрилансера
Заказчику
Найти по специализации
Найти по услугам
Провести конкурс
Разместить задание
Виртуальный HR
Найти студию
Другое
Найти работу
Фрилансеру
Найти задание
Присоединиться к команде
Участвовать в конкурсе
Предложить услугу
Другое
Возможности
Для заказчика
Для фрилансера
Вход
Разместить задание
▲