Ваши идеи — наше вдохновение

Ксения Брус ksyasya27

Рейтинг: 1 610
не верифицирован
Всего отзывов: 15 0
Профессионализм: 10 Коммуникация: 10
  • Активность:
  • Работ в портфолио: 64
  • Типовых услуг: 1
  • Работ на продажу: 0
  • Возраст: 47 лет
  • Стаж работы: 24 года
  • Зарегистрирован: 03.02.2017
  • Образование: Cпециалитет
  • Юридический статус:Самозанятый
Была на сайте:

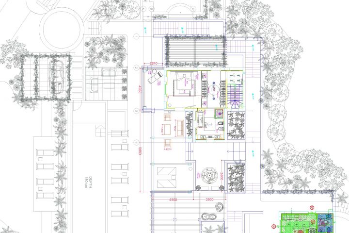
Ландшафтный план виллы на Крите

Используемые навыки:

Описание

Ландшафтный план виллы на Крите был выполнен в соавторстве с местной строительной компанией. В последствии нам был заказ проект интерьеров и экстерьеров виллы с подбором мебели и аксессуаров, а также авторским надзором над строительством.

Презентация проекта

pic4550818.jpg

Оценили проект:

0