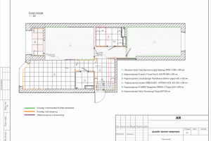
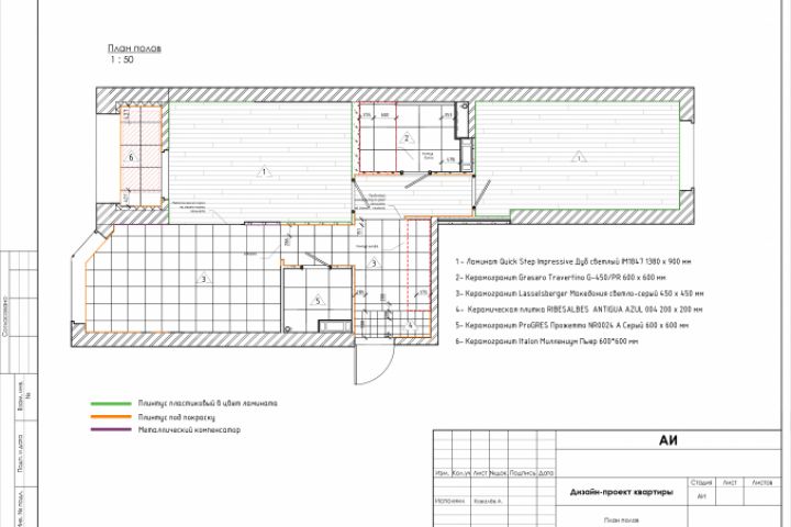
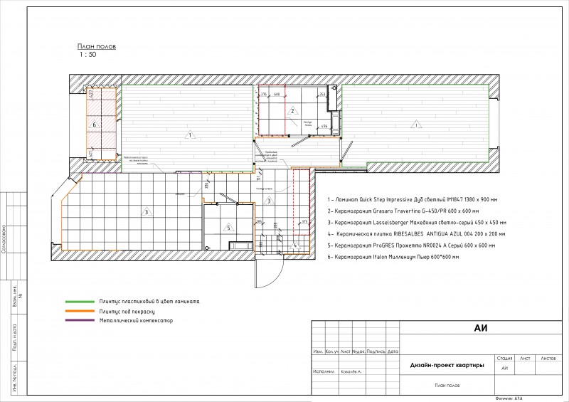
План напольных покрытий
Для полной функциональности этого сайта необходимо включить JavaScript.
Санкт-Петербург
Придаю форму Вашим мечтам!
Арсений Ковалёв
kovaloff
Top 10
Рейтинг: 4 876
не верифицирован
Всего отзывов:
18
0
Профессионализм:
10
Коммуникация:
10
Выполнил заданий:
16
Нейросаммари
Активность:
Работ в портфолио:
138
Типовых услуг:
4
Работ на продажу:
0
Возраст:
28 лет
Стаж работы:
8 лет
Зарегистрирован:
04.07.2018
Образование:
Магистратура
Юридический статус:
ИП
Стоимость услуг (руб):
1 500
за час
Был на сайте:
2026-04-05 в 00:49
+79043343507
inbox
telegram
whatsapp
arsenijkovalov@gmail.com
objective-studio.com
Вконтакте
Предложить работу
Добавить в избранное
Добавить рекомендацию
Пожаловаться
Дизайн пространства
130
0
План напольных покрытий
Используемые навыки:
Дизайн интерьеров
Описание
Решение
Результат
Соавторы
Презентация проекта
Примеры реализации
Описание
План напольных покрытий
Презентация проекта
Оценили проект:
0
×
Оценили проект
×
Авторизация
Для того чтобы оценивать проекты, вам нужно войти на сайт
Другие проекты
Все проекты
Коммерческий интерьер: Дизайн-проект VR-арены в Анталии (Минимализм &a...
Уютная лоджия
План размещения электрических изделий
FREELANCE.RU
Toggle navigation
Нанять фрилансера
Заказчику
Каталог фрилансеров
Каталог студий
Каталог услуг
Каталог работ
Виртуальный HR
Умный поиск
Провести конкурс
Разместить задание
Найти работу
Фрилансеру
Найти задание
Присоединиться к команде
Участвовать в конкурсе
Предложить услугу
Вход
Разместить задание
▲