Осмысленная Архитектура и Интерьер

Александра Ионова aleksandraions

Рейтинг: 15 408
не верифицирован
Всего отзывов: 0
  • Активность:
  • Работ в портфолио: 15
  • Типовых услуг: 7
  • Работ на продажу: 0
  • Стаж работы: 11 лет
  • Зарегистрирован: 06.09.2024
  • Образование: Бакалавриат
  • Юридический статус:Самозанятый
  • Стоимость услуг (руб): 3 500 за час 180 000 за месяц
Была на сайте:

Разработка раздела АС (архитектурно-строительные решения, в составе АР + КР)

280 000 руб
сделаю за 90 дней

92

Выполняю разработку раздела АС (архитектурно-строительные решения) для индивидуальных жилых домов и малоэтажных объектов.

В составе раздела АС разрабатываются архитектурные (АР) и конструктивные (КР) решения, необходимые для строительства: от планировочных и фасадных решений до проработки несущих конструкций.
Проект выполняется на основании утверждённой архитектурной концепции или эскизного проекта и предназначен для практической реализации на строительной площадке.

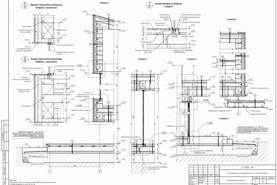
Состав раздела АС
Архитектурные решения (АР):
поэтажные планы;
фасады;
разрезы;
экспликации помещений;
архитектурные узлы и привязки.
Конструктивные решения (КР):
конструктивная схема здания;
фундаменты;
несущие стены, колонны, перекрытия;
лестницы;
основные конструктивные узлы;
спецификации конструктивных элементов.
(Инженерные разделы выполняются отдельно.)

Формат работы
Работаю удалённо. Проект выполняется по утверждённому эскизному решению или архитектурной концепции. Все ключевые архитектурные и конструктивные решения согласуются поэтапно.

💰 Стоимость
от 280 000 ₽
Стоимость зависит от площади дома, конструктивной схемы и сложности архитектурных решений.

⏱️ Сроки
60–90 дней
Срок определяется площадью объекта, типом фундамента, конструктивной схемой и объёмом проектной документации.

Разработка раздела АС  (архитектурно-строительные решения, в составе АР + КР)
Разработка раздела АС  (архитектурно-строительные решения, в составе АР + КР)
Заказать услугу

Вернуться в каталог