Осмысленная Архитектура и Интерьер

Александра Ионова aleksandraions

Рейтинг: 15 408
не верифицирован
Всего отзывов: 0
  • Активность:
  • Работ в портфолио: 15
  • Типовых услуг: 7
  • Работ на продажу: 0
  • Стаж работы: 11 лет
  • Зарегистрирован: 06.09.2024
  • Образование: Бакалавриат
  • Юридический статус:Самозанятый
  • Стоимость услуг (руб): 3 500 за час 180 000 за месяц
Была на сайте:

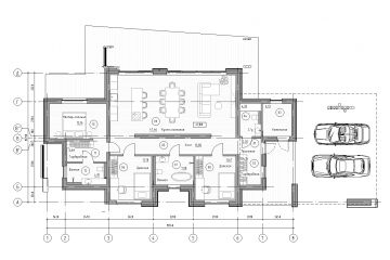
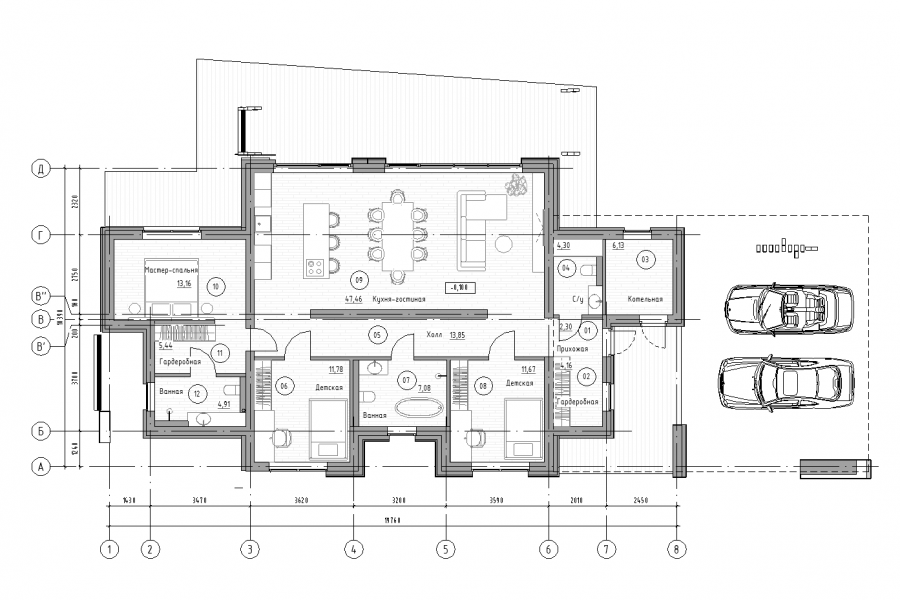
Планировочное решение для индивидуального дома

30 000 руб
сделаю за 14 дней

43

Планировка и функциональная организация пространства

Разрабатываем удобную и логичную схему помещения без полного дизайн-проекта.
Фокус — на рациональном и функциональном использовании пространства.

В рамках услуги:
- продуманная планировка с учётом сценариев жизни
- размещение мебели, с нанесением размеров проходов
- схемы сноса и возведения перегородок при изменении планировки (если есть проект, стадия реализации)
- рекомендации по улучшению эргономики и логики пространства (если есть проект, стадия реализации)

Без визуализаций, подбора отделки и декора. Только практичные решения, которые легко реализовать.

Подойдёт, если:
- нужно быстро понять, как лучше использовать площадь участка
- важна функциональность без лишних этапов
- есть готовый проект или объект на этапе реализации, под проживание или сдачу
- требуется грамотное планировочное решение на старте

Стоимость: от 30 000 ₽

Срок выполнения: 14 –20 дней

Планировочное решение для индивидуального дома
Планировочное решение для индивидуального дома
Планировочное решение для индивидуального дома
Заказать услугу

Вернуться в каталог