Рейтинг: 165
Паспорт верифицирован
Всего отзывов: 0
  • Работ в портфолио: 50
  • Типовых услуг: 1
  • Работ на продажу: 5
  • Стаж работы: 3 года
  • Тип занятости: Полный фриланс
  • Юридический статус:Самозанятый
Был на сайте:

Продаю: Проект дома в стиле ДубльДом

6 000 руб
Доработка: 1 000 руб

17

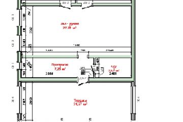
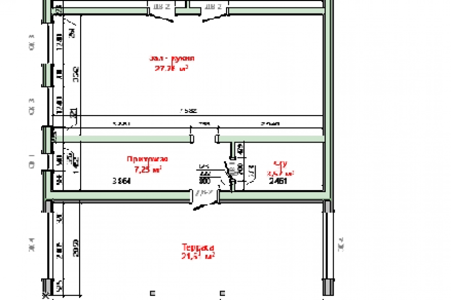
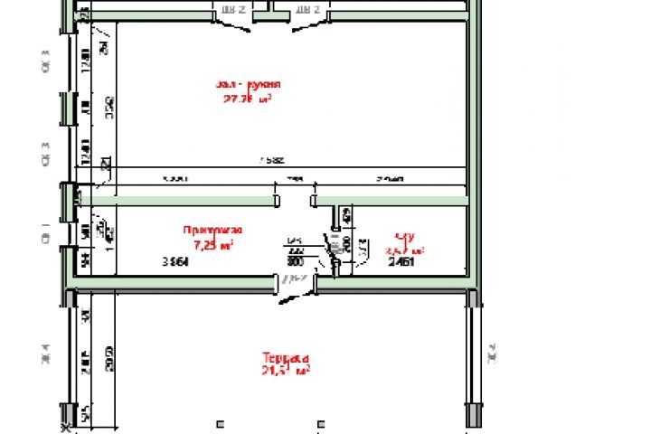
Проект дома в стиле ДубльДом. Каркас из сухой строганной доски. Один этаж. Расчётная площадь 60 кв.м. В проект входят Эскизный и Конструктивный проекты, Раскрой ПМ, Модели в BIMx.

Проект дома в стиле ДубльДом
Проект дома в стиле ДубльДом
Проект дома в стиле ДубльДом