Рейтинг: 165
Паспорт верифицирован
Всего отзывов: 0
  • Работ в портфолио: 50
  • Типовых услуг: 1
  • Работ на продажу: 5
  • Стаж работы: 3 года
  • Тип занятости: Полный фриланс
  • Юридический статус:Самозанятый
Был на сайте:

Продаю: Проект дома в стиле А-Фрейм

10 000 руб
Доработка: 1 500 руб

14

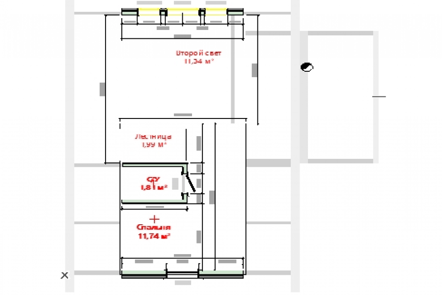
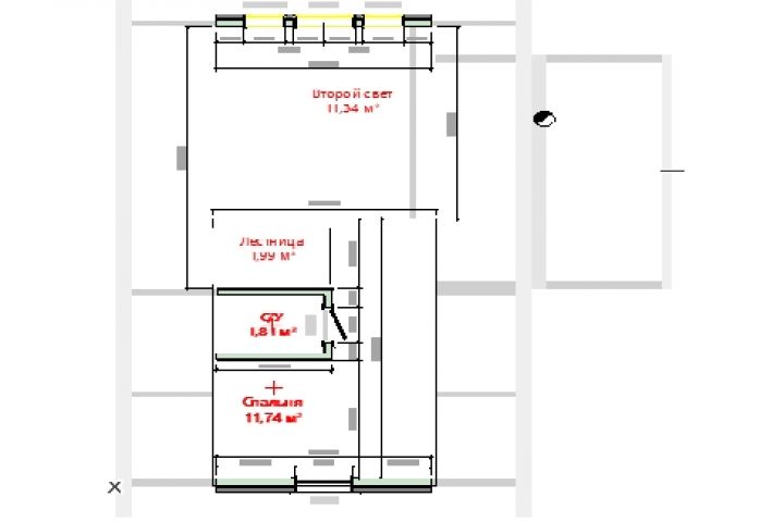
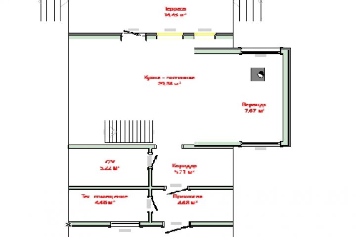
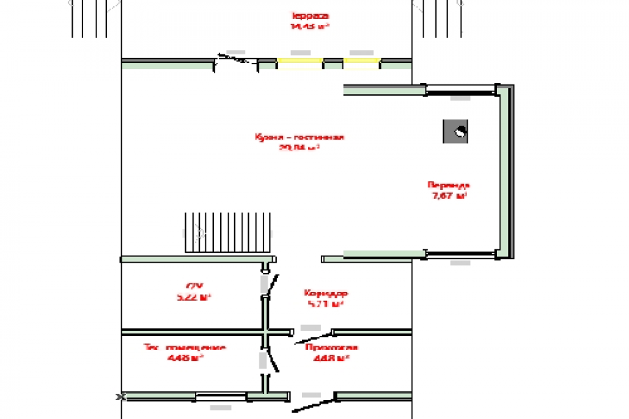
Проект дома в стиле А-Фрейм. Два этажа. С одной стороны панорамные окна с выходом на большую террасу. Утеплённая веранда с камином. Расчётная площадь 72 кв.м. Из строганной доски. Полы тёплые с электрообогревом. В проект входит Эскизный и Конструктивный проекты, Расчёт ПМ, Модели BIMx.

Проект дома в стиле А-Фрейм
Проект дома в стиле А-Фрейм
Проект дома в стиле А-Фрейм